Elbberg 3. OG Westen
Elbberg 1, 22767 Hamburg Büro und Geschäftsfläche in Premiumlage an der Elbe
Elbberg 1 - Arbeiten mit Elbblick in preisgekrönter Architektur: Das eindrucksvolle Lofthaus Elbberg 1 zählt zu den architektonischen Wahrzeichen Hamburgs. Entworfen vom Stararchitekten Hadi Teherani, wurde das Gebäude bereits mehrfach ausgezeichnet, unter anderem mit dem 1. Preis des PDA Hamburg Architektenpreises 1999 und als Bauwerk des Jahres 1997. Heute steht es zudem auf der Hamburger Denkmalliste (Denkmal AfA). Das Gebäude überzeugt durch seine imposante, innovative Architektur und bietet eine repräsentative Arbeitsumgebung in direkter Elblage dort, wo sich Tradition und Innovation zu einer kreativen Atmosphäre vereinen.
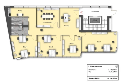
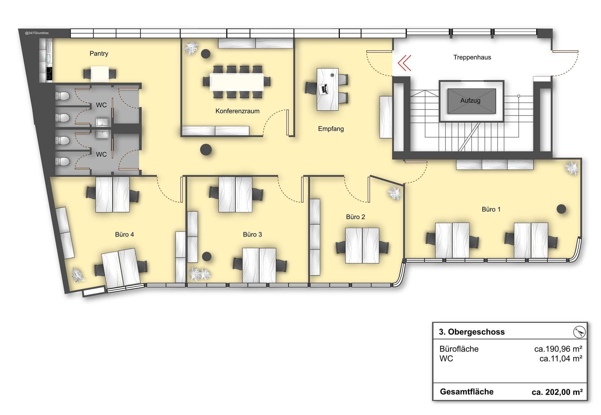
Die rund 202 m² große Gewerbefläche ist lichtdurchflutet und stilvoll gestaltet. Durch großzügige Fensterfronten entstehen helle, freundliche Räume mit einem offenen und einladenden Charakter. Die Einheit verfügt über einen Eingangsbereich, vier Büros, einen Konferenzraum sowie eine Küche mit Gemeinschaftsfläche. Zwei separate WC-Einheiten für Damen und Herren runden die durchdachte Aufteilung ab. Der Zugang erfolgt komfortabel über einen Fahrstuhl oder das Treppenhaus. Zwei überdachte Außenstellplätze direkt am Gebäude stehen ebenfalls zur Verfügung. Durch den Fähranleger unmittelbar vor dem Haus ist eine exzellente Anbindung in Richtung Landungsbrücken gegeben.
Die rund 202 m² große Gewerbefläche ist lichtdurchflutet und stilvoll gestaltet. Durch großzügige Fensterfronten entstehen helle, freundliche Räume mit einem offenen und einladenden Charakter. Die Einheit verfügt über einen Eingangsbereich, vier Büros, einen Konferenzraum sowie eine Küche mit Gemeinschaftsfläche. Zwei separate WC-Einheiten für Damen und Herren runden die durchdachte Aufteilung ab. Der Zugang erfolgt komfortabel über einen Fahrstuhl oder das Treppenhaus. Zwei überdachte Außenstellplätze direkt am Gebäude stehen ebenfalls zur Verfügung. Durch den Fähranleger unmittelbar vor dem Haus ist eine exzellente Anbindung in Richtung Landungsbrücken gegeben.
Eckdaten und Kosten
Lage:
Elbberg 1, 22767 Hamburg
Fläche:
202 m²
Etage:
3
Courtage:
78.540,00 €
Kaufpreis:
1.000.000 €
Die Lage
Der Elbberg befindet sich in unmittelbarer Nähe zum Hamburger Fischmarkt, direkt an der Elbe. Hier verschmelzen das historische Stadtbild und moderne Architektur zu einem einzigartigen Standort. Zahlreiche Restaurants und Cafés in allen kulinarischen Richtungen liegen direkt vor der Tür. Die Anbindung an den öffentlichen Nahverkehr ist hervorragend: Die Bushaltestelle Elbberg (Linien 111 und 113) liegt nur ca. 250 m entfernt, der Bahnhof Altona mit Fern- und S-Bahn-Anschluss ist in wenigen Minuten fußläufig erreichbar (ca. 950 m). Die Hamburger Innenstadt ist mit dem Auto in etwa 15 Minuten erreichbar, ebenso sind die überregionalen Autobahnen über die Ringstraßen schnell erreichbar. Auch der Fähranleger in unmittelbarer Nähe ermöglicht eine schnelle Verbindung zu den Landungsbrücken und weiteren Elbstandorten.